Eladó garázs Zalaegerszeg 11 200 000 Ft

Leírás

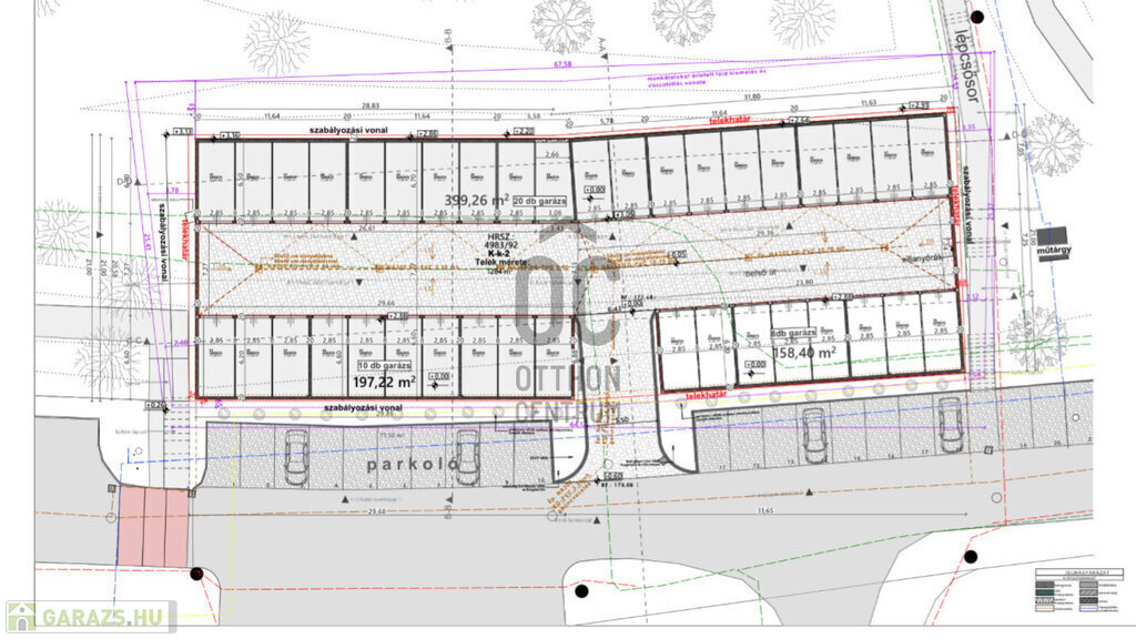
Korszerű előregyártott beton elemekből készülő, modern stílusú garázsok LANDORHEGY szívében.

Jellemzők:
- Hőszigetelt oldalfalakkal és lapos tetővel, szekcionált, motoros garázskapukkal.
- Egységes, 17,68 nm alapterülettel.
- A garázsok közötti elválasztó falak variálhatóak, illetve nagyobb terek létrehozásához kivehetőek, így dupla garázsok is létrehozhatóak, egyedi igény szerint.
- A tervezésnél különös figyelmet fordítottak az épület külső megjelenése illeszkedjen a jelenlegi környezethez.
- A nyugati épületsoron zöld tető kerül kialakításra.
- A keleti homlokzat felfutó növény telepítéssel kerül kivitelezésre,illetve dísznövények kerülnek a járda melletti földsávra.
- Körbekerített, sorompóval lezárt, tér világítással ellátott terület.
- Villamos hálózat: Nappali tarifás villamos energiaellátás: 1x32Amper/garázs. A garázsokban villamos alapszerelés kerül kialakításra, a gégecsövek a tartó szerkezetekben történő elhelyezésével. 3db 220V aljzat, 1db kapcsoló, 1db mennyezeti lámpa, a szerkezetbe süllyesztve, dobozhely kiállással,
vezetékelve. Az áramszolgáltató felé előzetes energiaigény lett benyújtva a fentiek szerint.

A kivitelezés ütemezése az alábbiak szerint:
I. ÜTEM: 10 db garázs 2025. szeptember- 2026. március
II. ÜTEM: 8 db garázs 2026. március- 2026. szeptember

További információért keressen bizalommal!

Garázs részletei

Ár: 11 200 000 Ft
Méret: 17 négyzetméter
Azonosító: 11610850
Irodai azonosító: G1997011-5189544
Férőhely: 1 férőhelyes
Jelleg: egyedi

Térkép


Így keressen garázst négy egyszerű lépésben. Csupán 2 perc, kötelezettségek nélkül!

Szűkítse a garázsok
listáját
Válassza ki a megfelelő
garázst
Írjon a hirdetőnek
Várjon a visszahívásra